Im Neubaugebiet „Am Reckendorfer Weg“ in Gerach sollen 19 neue Baurechte entstehen. Da bereits viele Anfragen vorliegen, wurde die Planung nun vom Gemeinderat verabschiedet. Die Erschließung kostet der Gemeinde rund 1,3 Millionen Euro. Beraten wurde außerdem über die Abhaltung einer Automobil-Rallye.
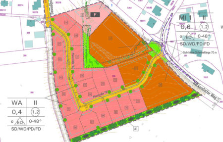
Die Ausführungsplanung zur Erschließung des Neubaugebietes „Am Reckendorfer Weg“ – im Anschluss an den „Grubenweg“ – wurde von Malte Feltel (Ingenieurbüro Stubenrauch aus Königsberg i. Bay.) dem Gemeinderat vorgelegt und näher erläutert: Das neue Baugebiet ist als Mischgebiet für 19 Bauplätze mit 14.000 Quadratmetern, zwei Gewerbeflächen und zwei Parzellen für die neuen Gebäude der Freiwilligen Feuerwehr ausgelegt. Der Anschluss am Grubenweg ist bereits asphaltiert und ein Mehrzweckstreifen vorhanden. Die neue Fahrbahn wird einen Regelquerschnitt von fünf Meter Breite und 50 Zentimeter Entwässerungsmulde besitzen. Der Pflasterrandstreifen kommt auf 1,90 Meter, woraus sich ein Gesamtquerschnitt in Höhe von ca. 7,50 Meter ergibt.
Die Erweiterung des Regenrückhaltebeckens „Grubenäcker“ um einen Inhalt von 90 Kubikmeter ist kostengünstiger als ein Neubau, zudem kann dadurch ein Bauplatz mehr gewonnen werden. Im oberen Bereich erfolgt die Kanalisation durch ein Trenn-, im unteren Bereich durch ein Mischsystem und endet in einem Vorfluter im Laimbach. Die Gesamtkosten für alle Maßnahmen inklusive Beweissicherung, eine mittlere Pflasterungsart, Abwasserbeseitigung, Entsorgung, Regenrückhaltebecken, Grundstücksanschlüsse, oberirdische Drucksteigerungsanlage, Erdarbeiten für Beleuchtung, Glasfaserkabel für Grundversorgung etc. beträgt eine geschätzte Summe in Höhe von 1,3 Millionen Euro. Umgerechnet auf die Baukosten ergibt das 65 Euro je Quadratmeter.
Der ehrgeizige Zeitplan sieht eine sofortige öffentliche Ausschreibung vor, die Auftragsvergabe soll bereits in der April-Sitzung stattfinden, da, so ergänzte Bürgermeister Gerhard Ellner, bereits 14 Reservierungen für die 19 Bauplätze vorliegen. Auch für die Gewerbeparzellen stünden schon Vormerkungen an. Die vorgestellte Ausführungsplanung wurde mit Hinblick auf das enge Terminkorsett vom Gemeinderat einstimmig gebilligt.
[6]
Ausführungsplan des Baugebiets „Am Reckendorfer Weg“ (zum Vergrößern anklicken oder antippen).
Kinderkrippe darf ins Rathaus
Aufgrund der guten Resonanz plant der Automobilclub Ebern für den 8. Juni 2019 auf Geracher Gemeindegebiet die erneute Abhaltung einer Automobil-Rallye. Hierzu erläuterte Rallyeleiter Arnold Genslein, dass der Streckenverlauf bis auf kleine Abweichungen wie in den Vorjahren geplant sei. Damit schätze man als Verbesserung die Lärmbelästigung geringer ein. Die Einbeziehung der Ortseinfahrt erfolge aus dem Grund, um die Geschwindigkeit herunter zu bremsen, so erklärte AC-Mitglied Hans Limpert, der erst 2018 vom ADAC Nordbayern als bester Motorsportler im Rallyefahren gehrt wurde. Die Zufahrt zum Wertstoffhof werde ganztägig zugänglich sein. Nachdem zweiter Bürgermeister Thomas Motschenbacher daran erinnerte, dass bei diesen hohen Geschwindigkeiten die Schotterstraßen unter der Belastung leiden könnten, wurde darauf hingewiesen, dass der Automobilclub bei Schäden hafte. Beim letzten Mal hätte man entsprechende Reparaturrechnungen beglichen. Gemeinderat Heinrich Förtsch erinnerte daran, dass die Häuser an der Ziegelei zum Ortsbereich gehören würden. Für das Autorennen werde, so die Antragsteller, laut § 29 der STVO die Straße für diesen Zweck entwidmet. Das Landratsamt würde zusätzlich das Einverständnis der Bewohner einholen. Die Gemeinderäte genehmigten den Antrag des AC Ebern mehrheitlich.
Der Kurzbericht von Bürgermeister Gerhard Ellner begann mit den personellen Veränderungen im Kreis der Feldgeschworenen: Als neuer Obmann ist Konrad Hartmann für Ingbert Funk und als dessen Vertreter Zweiter Bürgermeister Thomas Motschenbacher ernannt worden; es rückten zwei neue Feldgeschworene nach. Sowohl der Aerobic-Gruppe des SV Rot-Weiss Gerach als auch die Mutter-Kind-Gruppe wurde die Benutzung der Laimbachtalhalle genehmigt, so dass das wöchentliche Freitagstraining sowie die Basare im Frühjahr (10.3.) und Herbst (15.09.) und dann der „Spielzeugbasar“ am 17. November 2019 wie gewohnt stattfinden können.
Der Betrag der Schlüsselzuweisung beläuft sich auf 257.504 Euro, die Einwohnerzahl beträgt derzeit 976 Einwohner. Erfreulich sei es auch, so Ellner, dass eine Übergangslösung der Kinderbetreuung, nämlich die Kinderkrippe im Rathaus einzuquartieren, vom Landratsamt genehmigt wurde, und die Regierung von Oberfranken nach einer Wirtschaftlichkeitsprüfung des alten Bestands, einen Kindergartenneubau befürwortete.
